Introduction to Construction Lien Waivers

Construction Lien Waiver Forms for All 50 States—Lease for $19.99/mo

Introducing EasyPDF™ Construction Lien Waiver the first and last digital Construction Lien Waiver you will ever need. Truth Be Told, you can search the Internet forever and a day until your heart's content but You Will Not Find a Conditional lien waiver in digital form able to be completed/submitted in as short a period of time. To view and compare an EasyPDF™ Lien Waiver and its form features to the competition, Click Here.

For those unaware, only twelve (12) States out of 50 (refer to map provided below) have statutory lien laws that provide the exact language to use on lien waivers in which event the statute almost always invalidates any waiver of lien that fails to fully comply with the law. While the courts may allow subtle stylistic or formatting changes, neither party is allowed to make any changes to the substance of the document. Thus, to ensure full compliance with a State that has statutory lien laws and provide the same level of protection required by the statute, an EasyPDF™ lien waiver provides the same exact language, word-for-word, extracted from the statute of the State in which it is to be used. As for the 38 States that don't provide statutory lien laws, it appears to be a crap shoot given the language used therein more often than not appears to favor the party for whom it was drafted. This being the case, our advice is to consult an attorney to ensure your lien rights are protected and you're not unknowingly signing away your lien rights by signing an unconditional waiver of lien containing language you don't fully understand or one you haven't read when you have yet to get paid. In the event you should have any reservations whatsoever signing an unconditional lien waiver, it's best to err on the side of caution by refusing to sign it. While on the subject of lien waivers, we provide low price universal conditional lien waivers for progress/final payments in all States without statutory lien laws (Note: We Do Not Provide Unconditional Lien Waivers of Any Type given their inherent liability). Last but not least, while there used to be three States requiring notarization of lien waivers by law, two presently remain, namely Mississippi and Wyoming (see map provided below), given Texas abolished notarization of lien waivers in 2021. Moreover, those working on a project located in a State other than Miss or Wyoming may also take advantage of technology available today using electronic digital signatures—acceptable in a court of law in all 50 States for well over the past 10 years—to further reduce time taken to submit a properly completed and signed lien waiver that doesn't require notarization. We should also add that anyone residing in a State that does not require a lien waiver to be notarized, cannot be required by law to do so. Likewise, a person cannot be required by law to sign an unconditional lien waiver when they have yet to be paid nor can a bank, title company, or other third party refuse a lien waiver with an electronic digital signature instead of a handwritten one. Needless to say, all good to know given many bank loan officers, title company personnel, and contractors continue to use vintage unconditional lien waivers, obtain notarization, and apply a handwritten signature, none of which is mandated by law not to mention the liability associated with signing an unconditional lien waiver when a party has yet to get paid.

Moving on, all EasyPDF™ digital Lien Waiver forms (Scroll down to view sample waiver forms), provide the same level of form features known to eliminate redundancy, enhance efficiency, and increase productivity as already explained in 'Introduction to EasyPDF™ Forms' presented elsewhere on our website. This in turn allows a lien waiver in digital format to be completed, digitally signed, and sent to a recipient in an email file attachment under a minute—in States where a notary is not required—as opposed to a half hour or more. Moreover, completing and submitting a subsequent lien waiver for the same construction project often takes less than a minute. For example, assuming you have completed and submitted a lien waiver for a previous progress payment in which event you saved the lien waiver in PDF format, you need only open the former lien waiver form and edit the payment and date fields to accommodate the next lien waiver to be submitted for a progress or final payment. Given the number of form fields to be changed to complete, sign, date, and submit the subsequent lien waiver shouldn't really take more than 15 seconds at most.

Last but not least, we provide Free conditional/unconditional lien waivers for each and every State displaying the image of the State for which the lien waiver is intended. Moreover, unlike other lien waiver digital forms on the market such as that provided by LevelSet, our digital lien waiver forms provide form features designed to simplify and facilitate completion and submission of the form in record time using the Free Adobe Reader. To download a Free forever digital construction lien waiver that can be used in any State without Lien laws Click Here. To request a digital construction lien waiver for any one of twelve States having Lien Laws Click Here.

Responsive image

To Learn more regarding EasyPDF™ digital lien waivers along with the inherent risk in signing an unconditional lien waiver as well as one you didn't read or understand,
Visit Our Blog

Arizona Conditional Lien Waiver & Release on Progress Payment

Sample AZ Lien Waiver 2

AZ Conditional Lien Waiver - Progress Payment

California Conditional Lien Waiver & Release on Final Payment

Sample CA Lien Waiver 1

CA Conditional Lien Waiver - Final Payment

California Conditional Lien Waiver & Release on Progress Payment

Sample CA Lien Waiver 2

CA Conditional Lien Waiver - Progress Payment

Georgia Conditional Lien Waiver & Release on Final Payment

Sample GA Lien Waiver 1

Georgia Conditional Lien Waiver - Final Payment

Georgia Conditional Lien Waiver & Release on Progress Payment

Sample GA Lien Waiver 2

Georgia Conditional Lien Waiver - Progress Payment

Texas Conditional Lien Waiver & Release on Final Payment

Sample TX Lien Waiver 1

Texas Conditional Lien Waiver - Final Payment

Texas Conditional Lien Waiver & Release on Progress Payment

Sample TX Lien Waiver 2

Texas Conditional Lien Waiver - Progress Payment

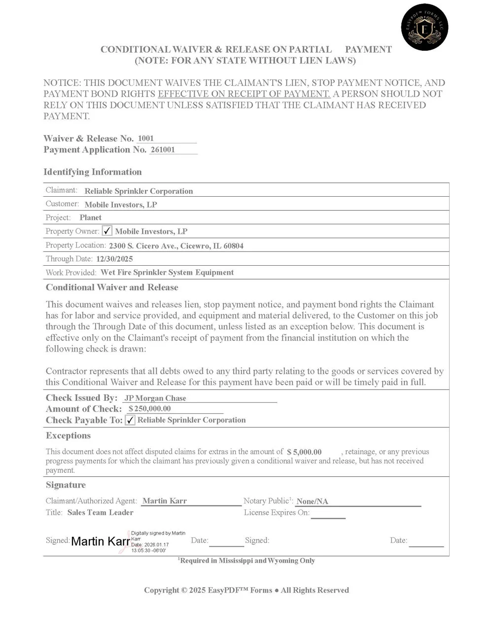
Illinois Conditional Lien Waiver & Release on Progress Payment

Sample Illinois Lien Waiver

IL Conditional Lien Waiver - Progress Payment